家の内観

性能も、デザインも。どちらも妥協しない邸宅。

洗練された住空間を体感しませんか?

habitat and promstyle
4/
18 Sat 19 Sun
4/
25 Sat 26 Sun

東京都大田区上池台

  • 神奈川・東京で家を建てたいけど、金計画や住宅ローンってどうしたらいいの?

    神奈川・東京で家を建てたい
    けど、金計画や住宅ローンって
    どうしたらいいの?

  • 家の間取りやデザインがなかなか決まらない...

    家の間取りやデザインが
    なかなか決まらない...

  • 実際に暮らした時のイメージが湧かない...

    実際に暮らした時の
    イメージが湧かない...

このような理由で
悩まれている方が多いです

完成見学会で何でもご相談ください!

マイホームの予定は決まってないけど、
見に行ってもいいのかな...
スーツを着た男性

もちろんです!来場されるお客様の
ほとんどはマイホームの予定が
決まっておりません。

完成見学会に行ったことないから
どうしたらいいのか不安…
スーツを着た女性

すべて私達にお任せください!

ハビタットの完成見学会で、
気になることなんでも
ご相談いただけます!

ご都合が合わない場合は、随時開催の「注文住宅なんでも相談会」でも
無料でご相談いただけます。

01

住みたい場所で
住みたい建物づくり

家づくりは一生で一度のお買い物だからこそ、あなたの理想やこだわり、住みたい場所は妥協できないポイントですよね。
そんなあなたの理想を叶えるべく、住みたいお家づくりはもちろん、住みたい場所からもお家づくりをご提案します。

02

家族の「健康」を守る家

プロが厳選した設備仕様で「暮らし」の快適さをとことん追求しました。
ご家族の健康を考えて、標準設備には、ナノイー発生器、基礎蓄熱型床暖房(レガレット)、高性能・高気密断熱(発泡ウレタン)、空調システム付など日常の豊かさを重視しています。

03

まずは体感してください

ワンランク上の標準仕様をまずは、完成見学会で体感してください。
プロのコーディネーターが厳選した家具・家電・インテリア付きで購入後即入居も可能です。
「プロの想いが詰まった、自分たちが住みたくなる家」をご提案しております。

4/
18 Sat 19 Sun
4/
25 Sat 26 Sun

Charme Roger 上池台

東京都大田区上池台4-37-16

スタバカード 2,000円分

  • ※初めてご来場される方限定の特典となります。
  • ※特典は1組(1家族)につき1枚までとなります。
  • ※特典は無くなり次第終了となります。
  • POINT 01

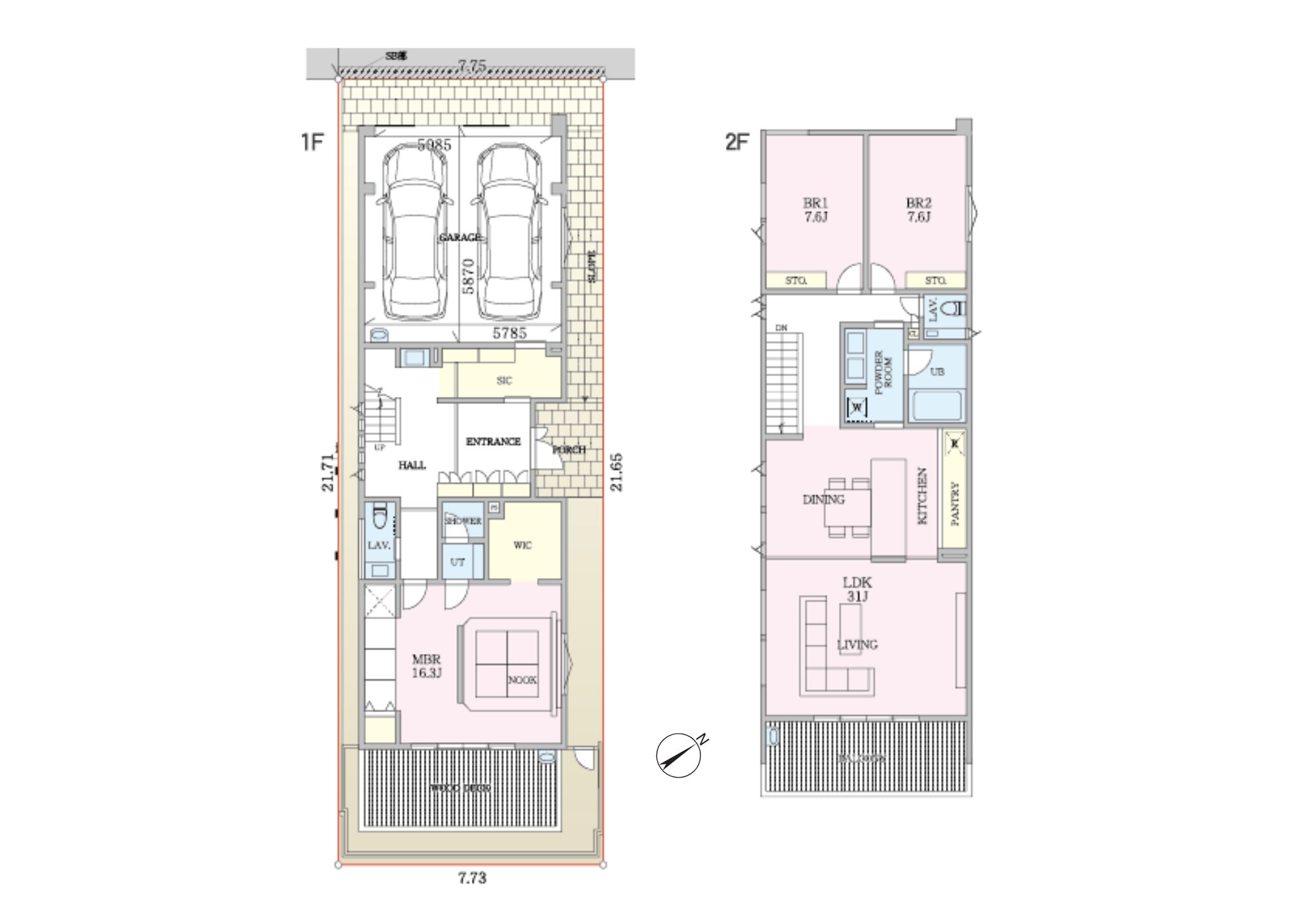
    高台からの景色を楽しむ31帖の広々LDK

    仕切りのない、のびやかな31帖のLDK。 圧倒的な開放感が感じられるだけでなく、採光が部屋中に広がる暖かい空間です。 その心地よいぬくもりに、家族が自然と集まります。 リビングを2階に設けたことで、外からの視線を気にせず、大きな窓から差し込む光と青い空を楽しめる住まいになりました。 この見晴らしの良さが、家族の時間をより豊かに、鮮やかに彩ってくれるはずです。

  • POINT 02

    ほっと心落ち着く、隠れ家のようなヌック

    丸みのあるアーチの入り口が、懐かしさ漂う、やさしい雰囲気をつくってくれます。 その先にあるのは、自分だけの小さな隠れ家のようなヌック。 内装は落ち着いた和のテイストでまとめていて、一歩入ると、ふっと気持ちがゆるむような空間です。 コンパクトだからこその“おこもり感”も心地よく、家事や仕事の合間にお茶を飲みながらひと息つく場所にぴったり。 暮らしの中で自然と足が向く。そんなほっと落ち着ける小さな憩いの場です。

  • POINT 03

    旅館のような、和のレストルーム

    床の一角に砂利を敷き、さりげなく和の趣を取り入れたレストルーム。 まるで旅館のような落ち着いた雰囲気で、空間に奥行きとやわらかな表情を与えてくれます。 毎日何気なく使う場所だからこそ、細部まで丁寧につくり上げました。

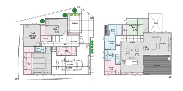
間取り

3LDK+ガレージ(2台)

東京都大田区上池台4-37-16

4/
18 Sat 19 Sun
4/
25 Sat 26 Sun

スタバカード 2,000円分

  • ※初めてご来場される方限定の特典となります。
  • ※特典は1組(1家族)につき1枚までとなります。
  • ※特典は無くなり次第終了となります。

見学当日の流れ

心が満たされる未来、贅沢な建売

わたしたちプロムスタイルは、「建売にみえない建売」を販売しております。
ライフスタイルやこだわりに合わせた2つのシリーズがあり、「CharmeRoger」は、ライフスタイルに家が寄り添う建売分譲住宅「MODEL CODE」は、作品住宅と商品住宅の間にある選択肢~本質という住み心地~将来にわたり住み心地を追求し、ご家族が安心と喜びに満ちた住まいをお届けします。
建売だけど、一生モノの満足感をそう考えるプロムスタイルです。

あなたとあなたの家族とつくる、特別な住まい

人気ブランドCharmeRogerやMODEL CODEの施工を担当しているハビタットデザイン性・品質の高さから注文住宅「ハビの家」が圧倒的人気2021年日本コンシューマーリサーチの不動産関係者が選ぶ工務店信頼度No.1に輝きました。
ハビタットでは、あなたとあなたのご家族の理想を形にする住まいを提供しています。建築士・設計士をはじめとするさまざまなプロがサポートします。

ワンランク上の暮らしを
追求する、唯一無二の建売

ライフスタイルに合わせた住み心地を追求する「プロムスタイル」と理想をかたちにする注文住宅が得意な「ハビタット」が融合することで他にない、唯一無二のワンランク上の住まいをご提供しています。あなたが描く未来設計を、真心こめて実現します。

1分で簡単!ご予約フォーム

入力内容を確認してください

希望日必須
希望時間必須
お名前必須
フリガナ必須
お電話番号必須 *ハイフンなし
メールアドレス必須
弊社からの
連絡方法必須
郵便番号必須 *ハイフンなし
ご住所任意
来場予定人数必須

大人 

お子様

今回のイベントを
どこで知りましたか?任意
ご興味のある項目(複数回答可)任意
見学会ではどのように
過ごしたいですか?任意
担当へあらかじめ相談したいことがあればお気軽にご記入ください必須

相談内容:

必須

page-top